2530 ChaseEdgewater, CO 80215




Mortgage Calculator
Monthly Payment (Est.)
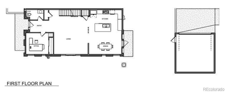
$5,863Experience a distinctive blend of sophisticated design and neighborhood charm in this striking 5-bedroom, 4-bathroom residence. Spanning 3,029 finished square feet across three above-grade levels, this home is defined by its intentional craftsmanship and sweeping treetop and city views. The main level welcomes you with an expansive open floor plan bathed in natural light. At the heart of the home is a chef-inspired kitchen featuring custom cabinetry, premium quartz waterfall countertops, and a gas range with downdraft venting and a versatile wall oven/microwave combination. Tucked away for maximum productivity, the private main-level office offers the flexibility to serve as a fifth bedroom. The second level is anchored by a generous primary suite, boasting dramatic vaulted ceilings, a spa-like five-piece ensuite, and a cavernous walk-in closet. Two additional bedrooms, a secondary bathroom, and a conveniently located laundry room complete this floor. Ascend the oak staircase to a versatile third-floor loft. Whether utilized as an additional bedroom or a secondary lounge, this space opens directly onto a private walk-out deck, offering a perfect vantage point for city lights and sunset views over the canopy. Enjoy Colorado evenings in your private fenced yard or utilize the oversized detached two-car garage for additional storage and gear. Located just blocks from the vibrant energy of Sloan’s Lake, Edgewater Public Market, and the iconic Edgewater Beer Garden, this home provides effortless access to the best dining and recreation in the city.
| yesterday | Listing updated with changes from the MLS® | |
| yesterday | Listing first seen on site |
The content relating to real estate for sale in this Web site comes in part from the Internet Data eXchange ("IDX") program of METROLIST, INC., DBA RECOLORADO real estate listings held by brokers other than Metro Real Estate are marked with the IDX Logo. This information is being provided for the consumers' personal, non-commercial use and may not be used for any other purpose. All information subject to change and should be independently verified.
